4.9
Рейтинг на основании 120 отзывов
Дмитров
Опорный проезд 28Б
(индустриальный парк Ниагара)
Бренд "Дмитров-Дело" c 2008 года на рынке строительства в Дмитрове
Звоните 9:00 до 18:00 8 (915) 055-33-61
Бренд "Дмитров-Дело" c 2008 года на рынке строительства в Дмитрове

Загородный дом «Семейный MEI»

Стоимость проекта от:
37 800 ₽
БЕСПЛАТНО! ПРИ ЗАКАЗЕ СТРОИТЕЛЬСТВА
Стоимость строительства от:
5 146 680 ₽
Артикул ART-14828
Дата 25.12.2025
Архитектурный стиль Барнхаус
Количество надземных этажей 1
Круглогодичное проживание Да
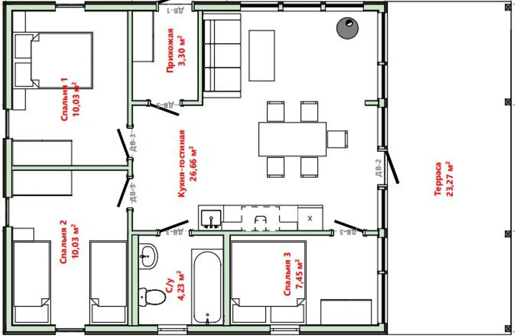
Площадь дома 84 м2
Санузлы 1
Спальни 3

Описание

Добро пожаловать в загородный дом «Семейный MEI» – ваш новый оазис уединения и уюта. Это одиннадцатостоящий дом в стиле барнхаус, где каждая деталь продумана, чтобы создать атмосферу домашнего тепла и свободы. Здесь тепло круглый год: изысканная каркасно‑панельная конструкция и два скатных крыша защищают ваш комфорт от зимних штормов и летних палящих лучей. Без лишних украшений в виде балконов или веранд, дом выглядит лаконично и современно, а большая уютная терраса приглашает наслаждаться закатами и свежим воздухом прямо у вашего порога. «Семейный MEI» – это идеальное решение для тех, кто ищет простую, но функциональную обитель. Гараж или крытая стоянка не предусмотрены, но открытая среда способна обеспечить вам приятные прогулки и простоту перемещения на скутер или велосипед. Внутри дома вы найдете просторные комнаты, открытые в свет, и просторные зоны для семейных ужинов, игр и отдыха без лишних перегородок. И именно здесь, среди зеленых насаждений и тихих звуков природы, вы сможете восстановить связь с собой и близкими, обретая домашний уют в окружении живой гармонии.

Характеристики дома

Архитектурный стиль
Автоматизированное регулирование параметров теплоносителя
Да
Балконы/лоджии
Отсутствуют
Чердачное помещение
Нет
Датчики протечки воды
Да
Эксплуатируемая или зеленая кровля
Нет
Электроснабжение
Центральное
Газоснабжение
Не предусмотрено
Изоляция воздушного шума
Да
Камин
Нет
Класс энергоэффективности
-
Класс энергосбережения
-
Количество надземных этажей
1
Круглогодичное проживание
Да
Материал кровли
Металлические рулонные или листовые материалы
Материал перекрытий
Деревянные
Материал внешних стен
Материал внутренних перегородок
Деревянные
Модульное строительство с конструкциями заводского изготовления
Нет
Объем надземной части
-
Основной материал фасадов
Планкен
Отопление
Индивидуальное
Площадь дома
84 м2
Площадь застройки
87 м2
Подвальное помещение
Нет
Показатель компактности здания
-
Приборы учета тепловой энергии
Да
Пристроенный гараж/крытая автостоянка
Нет
Противопожарная система
Да
Санузлы
1
Совмещенная кухня-гостиная
Да
Спальни
3
Терраса
Да
Тип фундамента
Свайный
Тип кровли
Толщина внешних стен
300 мм
Толщина внутренних перегородок
200 мм
Улучшенные шумовые характеристики
Да
Вентиляция
Естественная
Веранда
Нет
Водоотведение
Локальные очистные сооружения
Водоснабжение
Индивидуальное
Высота дома
-
Высота потолков
3.28 м

Планировка

Фасад дома

Александр

Закажите выезд инженера

Александр

Выездной инженер
Закажите выезд инженера для точной диагностики и профессиональной консультации по инженерным системам. Специалист приедет в удобное время, проведёт осмотр, рассчитает стоимость работ и подберёт оптимальные решения для вашего дома.


    Похожие проекты

    Ипотека и
    рассрочка
    Двухэтажный загородный дом 4С-144_10 (2)
    Стоимость от:
    10 594 560
    Проект от: 64 800
    Этажей 2
    Санузлы 3
    Спальни 4
    Смотреть
    Ипотека и
    рассрочка
    Загородный дом АС-286
    Стоимость от:
    9 218 880
    Проект от: 59 400
    Этажей 2
    Санузлы 2
    Спальни 4
    Смотреть
    Ипотека и
    рассрочка
    Индивидуальный жилой дом АТЛАНТ-4.2
    Стоимость от:
    10 158 720
    Проект от: 66 600
    Этажей 2
    Санузлы 2
    Спальни 4
    Смотреть
    Ипотека и
    рассрочка
    Одноэтажный дом: Проект «Луна»
    Стоимость от:
    4 802 160
    Проект от: 30 600
    Этажей 1
    Санузлы 1
    Спальни 2
    Смотреть
    Ипотека и
    рассрочка
    Загородный дом ГД-908
    Стоимость от:
    6 110 500
    Проект от: 45 000
    Этажей 1
    Санузлы 2
    Спальни 3
    Смотреть
    Ипотека и
    рассрочка
    ЛАКЕ
    Стоимость от:
    8 808 800
    Проект от: 63 000
    Этажей 1
    Санузлы 2
    Спальни 3
    Смотреть

    Как узнать стоимость дома

    back
    Оставляете заявку
    Вы заполняете форму на сайте или звоните нам. Менеджер Лайвкрафт связывается с вами для уточнения деталей: тип дома, площадь, материалы, участок строительства.
    back
    Консультация и подбор решения
    Наш специалист помогает выбрать оптимальный тип дома и конструкцию с учётом бюджета, сроков и целей — будь то дом для постоянного проживания или дача.
    back
    Расчёт предварительной стоимости
    Инженер делает первичный расчёт стоимости строительства по вашим параметрам: фундамент, коробка, кровля, отделка. Вы получаете смету с разбивкой по этапам.
    back
    Корректировка и утверждение сметы
    При необходимости вносим изменения — например, замену материалов или сокращение этапов. После согласования формируется окончательная фиксированная смета.
    back
    Заключение договора и старт работ
    После утверждения сметы заключаем официальный договор с гарантией. Вы получаете прозрачный график и точную стоимость — без скрытых расходов.

    Заказать конусльтацию по:Загородный дом «Семейный MEI»

    Фото 1 Загородный дом «Семейный MEI»


      Наши
      контакты

      Дмитров
      Опорный проезд 28Б
      (индустриальный парк Ниагара)
      9:00 до 18:00

      Корзина